Marysville

Marysville

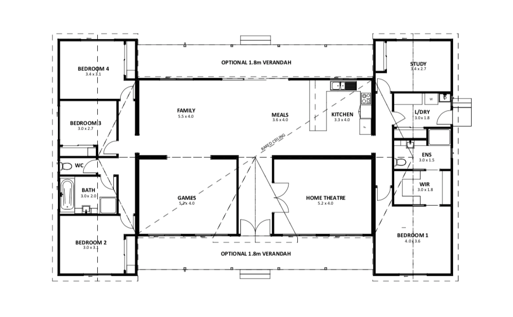
Bedrooms

4

Bathrooms

2

Area

211.1sqm

Dimensions

21 X 12.6

The four-bedroom Marysville is one of our most spacious designs with features that are sure to impress. The gable façade and optional front verandah provide character and look right at home in a rural setting.

 

The master bedroom is situated in a separate wing and includes an ensuite and walk-in robe. The central living zone is a real highlight, featuring a large open plan space that opens out to the optional back verandah. There is also an independent home theatre and separate games room at the front of the house, so even the largest family can relax and unwind in their own space.

 

*Please note this floorplan & the windows shown may be subject to changes to align with 7-star energy rating requirements and liveable housing design guidelines*

*Dimensions can vary per facade type. The dimensions provided here are based on our Traditional Gable facade.*

Marysville

Access our brochure

View our full range of modular home designs, view all available floorplans and explore a clear guide to the modular home building and buying process.

Standard inclusions
Optional additions
Premium upgrades
Sustainability upgrades
10-Year structural guarantee
Domestic building insurance (6 years)
3-month building maintenance period
Building permit
Concrete footings up to 800mm depth, with solid concrete block piers
Termite barriers installed in accordance with the BCA
Engineered galvanised sub-floor frame
Finished floor height of 600mm
Plantation pine structural timber wall frames and roof trusses
7mm structural plywood bracing to all exterior walls of modules
22mm particle board flooring
Colorbond® roofing, facia and gutters
90mm PVC downpipes painted to match wall colour
Lightweight external cladding from standard Range.
BAL 12.5 rated construction
N2 wind-rated structure
R 4.0 insulation batts to ceiling
R 2.5 insulation batts to external walls
R 1.9 under floor insulation
R 1.4 reflective thermo-cellular insulation to roof
Vapour permeable wall wrap
Aluminium double-glazed awning windows & sliding doors
Bathrooms, WC & laundry windows single-glazed with cathedral glass
Flyscreens to all openable windows & sliding doors (excluding 4-panel stacking door)
Timber door to entrance from standard range
Aluminum framed fully-glazed door to laundry
Timber landing and steps to front and rear doors, up to 600mm in height
Timber ramp with Merbau decking to entrance up to 600mm in height
10mm plasterboard to walls and ceilings
Villaboard to bathroom walls
67mm skirting and architraves from standard Range
75mm cove cornice
2040mm Flush Panel internal doors
Smartrobe sliding door units to built-in robes
Laminate shelving and hanging rails to built-in robes
Lane lever door furniture
Cushion door stops to all doors opening onto walls
Floor tiles to bathrooms and laundry from standard range
Vinyl planks to kitchen, meals, dining & living areas from standard range
Carpet to bedrooms, study, lounge and theatre rooms from standard range
Melamine cabinets with laminate benchtop as per standard design
Overhead cabinets
Fridge cabinet
1 x nest of pot drawers
1 x nest of 4 drawers
Soft Close drawers
1 ½ bowl Stainless steel sink
Chrome water saver flickmixer tap
Tiled splash back
Westinghouse stainless steel 60cm under bench electric oven from standard range
Westinghouse stainless steel 60cm gas cook top from standard range
Westinghouse stainless steel 60cm pull out range hood from standard range
Laminate 2 door vanity unit to bathrooms
Wall-mounted mirror above vanity
Ceramic basin from standard range
Chrome finish tapware from standard range
Ceramic water-saving toilet suite with soft close lid
Chrome finish double towel rail and toilet paper holder from standard range
Tiled shower base
Semi-frameless shower screen
Melamine cabinets with laminate benchtop to laundry as per standard design
Stainless steel inset laundry trough
Waterproofing as per AS 3740-1994
Floor tiles from standard range
Bathroom wall tiles from standard range to 2.0m height in shower recess and 1.0m height to remainder of walls
Skirting tiles and tiled splash back to laundry & WC
Electrical meter box and switchboard fitted externally
LED downlights throughout home
External lights to front of home from standard range
External light to laundry / rear door from standard range
2-in-1 Light & Fan combination light fitting to bathroom & ensuite
1 x external waterproof power point
1 x TV point
1 x telephone point
2 x double power points per bedroom
3 x double power points to Bedroom 1
Double power points throughout remainder of home
Smoke detectors hard-wired with battery backup
315L Rinnai Sunmaster evacuated-tube solar HWS, gas or electric boosted
1 x external garden tap
High quality paint to all external painted surfaces
High quality low VOC paint to all internal painted surfaces – 3-coat system
One colour throughout internally
Delivery to site is included in the base price specific to your project location. Please note, every project needs to be assessed on its own merits, and in some instances the delivery component of the base price may need to be reviewed to take into account over-dimensional truck routes & local road laws.
Carports & garages

For size, there’s the choice of single or double, and for style, you can select attached or detached.

Decks & alfresco

Enhance your home with custom decking, verandahs, or alfresco areas. All options can be seamlessly integrated into any Anchor design.

Service connections

We can arrange water, power, gas, and sewerage connections, as well as septic systems, for any project upon request.

Heating & cooling

Customise your climate control with options including split systems, ducted systems, wood heaters, and hydronic heating and cooling.

Upgraded external cladding

Facade upgrades

Stone bench tops for Kitchen/Bathrooms

Splash back upgrades to non-standard tiles, stone or glass

Dishwasher

Full height wall tiling in wet areas

Premium fixture upgrades

Floor covering upgrades

Window coverings (Blinds)

Decorative light fittings

Insulation

Increased wall & ceiling bulk insulation

Solar Hot Water

Solar hot water services (may be required for 7-star Energy Rating / BASIX compliance)

Rainwater Tanks

Slimline tanks or sizable water storage options for your main water supply

Window Insulation

Thermally broken aluminium window frames & high-performance glazing

Carports & garages

For size, there’s the choice of single or double, and for style, you can select attached or detached.

Decks & alfresco

Enhance your home with custom decking, verandahs, or alfresco areas. All options can be seamlessly integrated into any Anchor design.

Service connections

We can arrange water, power, gas, and sewerage connections, as well as septic systems, for any project upon request.

Heating & cooling

Customise your climate control with options including split systems, ducted systems, wood heaters, and hydronic heating and cooling.

Upgraded external cladding

Facade upgrades

Stone bench tops for Kitchen/Bathrooms

Splash back upgrades to non-standard tiles, stone or glass

Dishwasher

Full height wall tiling in wet areas

Premium fixture upgrades

Floor covering upgrades

Window coverings (Blinds)

Decorative light fittings

Insulation

Increased wall & ceiling bulk insulation

Solar Hot Water

Solar hot water services (may be required for 7-star Energy Rating / BASIX compliance)

Rainwater Tanks

Slimline tanks or sizable water storage options for your main water supply

Window Insulation

Thermally broken aluminium window frames & high-performance glazing

Frequently asked questions

Do you have any questions about modular home building that aren’t covered here? Get in touch with our friendly team – we’re happy to help.

All Faqs

Enter search term below

  • There are no suggestions because the search field is empty.