Yarck

Yarck

Victoria

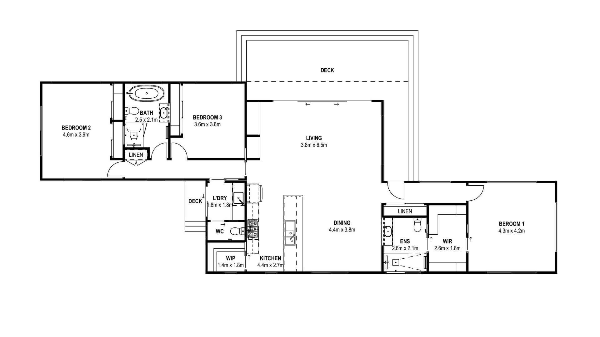
Design: Hampton 16 (Modified)
View design
Bedrooms

3

Bathrooms

2

Area

150sqm

Set high on a hill with spectacular 360° views of the surrounding bush and mountains in the beautiful upper Goulburn Valley, this modern rural home is impressive in every way. With minimal customisations, this stylish three-bedroom home is a wonderful example of the potential of our pre-designed homes.

{{item.name}}

We modified our Shoreham 19 design to fit our clients requirements for a holiday home.

___

With 9ft ceilings included throughout the home, every room feels incredibly spacious.

___

The Cubehaus façade was chosen for this project for its contemporary aesthetic.

___

Sliding doors connect the living and dining areas to the decking and alfresco, enhancing the flow between indoor and outdoor spaces.

Yarck
Yarck
Yarck

Ready to talk about your own project?

Get expert advice from one of our consultants to help you find your ideal home

Enter search term below

  • There are no suggestions because the search field is empty.