Walkerville

Walkerville

Victoria

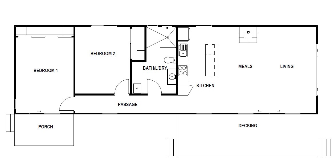
Design: Beaumaris (Modified)
View design
Bedrooms

2

Bathrooms

1

Area

89sqm

Light-filled and spacious, this compact holiday home on the Gippsland coast is the ideal place for a serene getaway by the sea. The 2-bedroom Beaumaris design features on-trend upgrades, with the modern cubehaus façade adding sleek lines and extra internal height. Nestled amongst nature and built to BAL 29, this picture perfect weekender is a winner.

{{item.name}}

With four generations of family history attached to the property, when it was time to replace the original family home, our clients had a clear picture of what they were hoping to achieve.

___

Our clients envisioned a ‘beach federation’ style, blending Australian federation with a casual coastal feel.

___

The living area exudes a sense of openness, enhanced by the raked ceiling.

___

The kitchen features a bi-fold window that opens seamlessly to the outdoor deck, perfect for hosting gatherings.

Walkerville
Walkerville
Walkerville

Ready to talk about your own project?

Get expert advice from one of our consultants to help you find your ideal home

Enter search term below

  • There are no suggestions because the search field is empty.