Venus Bay

Venus Bay

Victoria

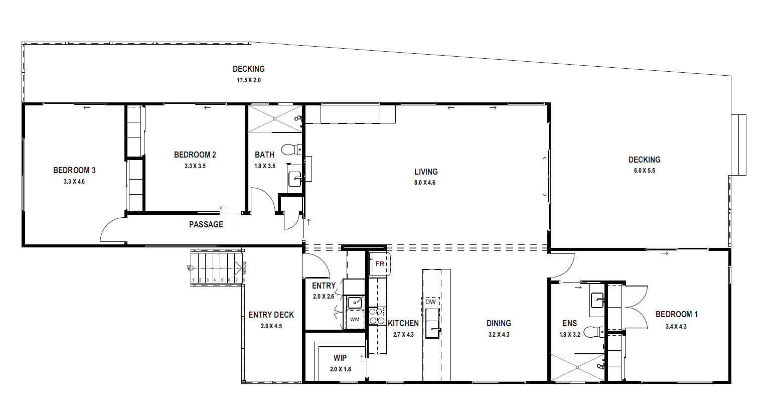
Design: Hampton 16 (Modified)
View design
Bedrooms

3

Bathrooms

2

Area

148sqm

At Anchor Homes, we have a longstanding relationship with Venus Bay, having constructed numerous homes across the area that complement the coastal landscape. At the heart of this charming community lies The Venus Bay Project, a stunning example of modern architecture. Featuring three spacious bedrooms and a large open plan living area, this modified Hampton 16 design is ideal for a family home or holiday home.

{{item.name}}

This Hampton 16 design has been efficiently modified by our design team to meet the specific needs of our clients.

___

The exterior features a Skillion facade, which is defined by its modern and sleek roofline. 

___

By removing the walk-in robe from the master bedroom, this allowed for increased space in the bedroom and a larger ensuite.

___

A reading nook was incorporated in the living space, complete with a large picture window.

Venus Bay
Venus Bay
Venus Bay

Ready to talk about your own project?

Get expert advice from one of our consultants to help you find your ideal home

Enter search term below

  • There are no suggestions because the search field is empty.