Trentham

Trentham

Victoria

Design: Custom
Bedrooms

4

Bathrooms

3

Area

177sqm

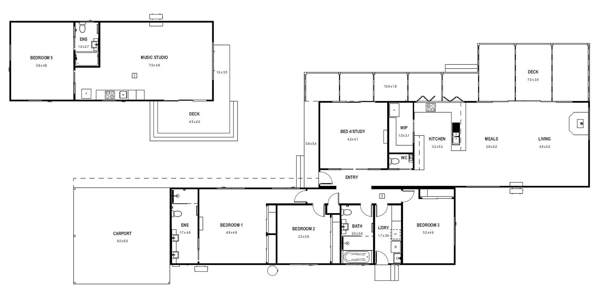
We've built many incredible homes across the Daylesford and Hepburn Shire Region and were thrilled to design another new modular project that captures the essence of modern countryside living. This custom-designed home features a main residence and a detached studio, showcasing the versatility and adaptability of modular construction. With a total of five bedrooms this property is a stunning example of our in-house design team's expertise and dedication.

{{item.name}}

This custom floorplan was tailored to fulfill our clients' requirements, underscoring the precision and proficiency of our design team. 

___

Our clients were drawn to our Cubehaus facade and wanted to incorporate this look into their own home. 

___

The master bedroom in the main residence measures an impressive 4.6m x 4.2m, providing generous space and comfort.  

___

The detached studio near the main home is a standout feature of this project, adding significant value and versatility to the property. 

Trentham
Trentham
Trentham

Ready to talk about your own project?

Get expert advice from one of our consultants to help you find your ideal home

Enter search term below

  • There are no suggestions because the search field is empty.