Taradale

Taradale

Victoria

Design: Hampton 16 (Modified)
View design
Bedrooms

3

Bathrooms

2

Area

165sqm

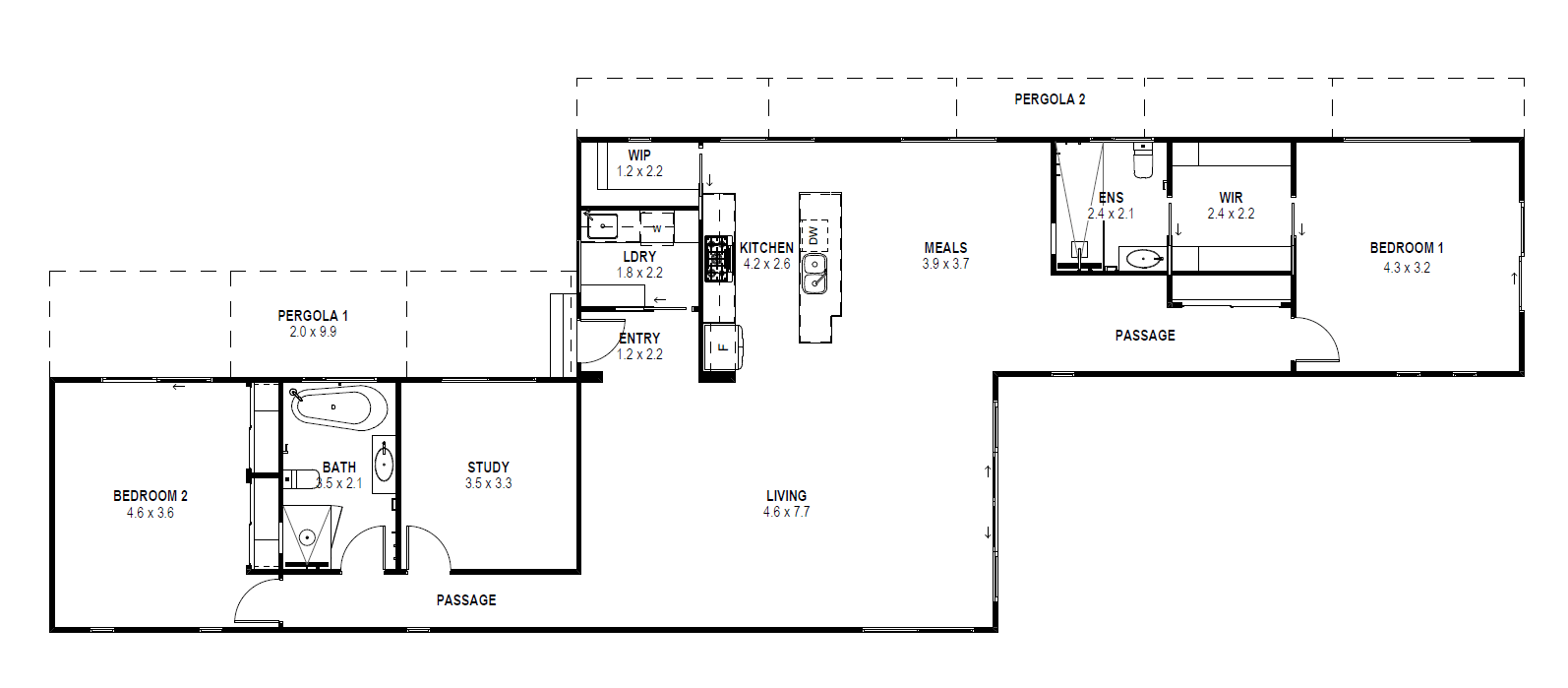
Set in Taradale, Victoria, this captivating countryside modular home is influenced by our iconic Hampton 16 design. Featuring three bedrooms, two bathrooms, and an expansive open-plan living space, this project is the ultimate rural sanctuary. Its design seamlessly blends contemporary living with rustic charm, creating a tranquil haven amidst nature's beauty.

{{item.name}}

After selecting the Hampton 16 design, our clients expressed their desire to retain and customise certain elements of the floorplan.

___

The clients opted to incorporate upgrades such as hardwood timber window frames, a wrap-around Merbau deck, spotted gum hardwood timber flooring and more.  

___

The BAL-40 rated Lysaght Custom Orb cladding in Monument creates a stunning contrast against the tussock.

Taradale
Taradale
Taradale

Ready to talk about your own project?

Get expert advice from one of our consultants to help you find your ideal home

Enter search term below

  • There are no suggestions because the search field is empty.