Suburban Display Home, Stratford

Suburban Display Home, Stratford

Victoria

Design: Suburban (Custom)
View design
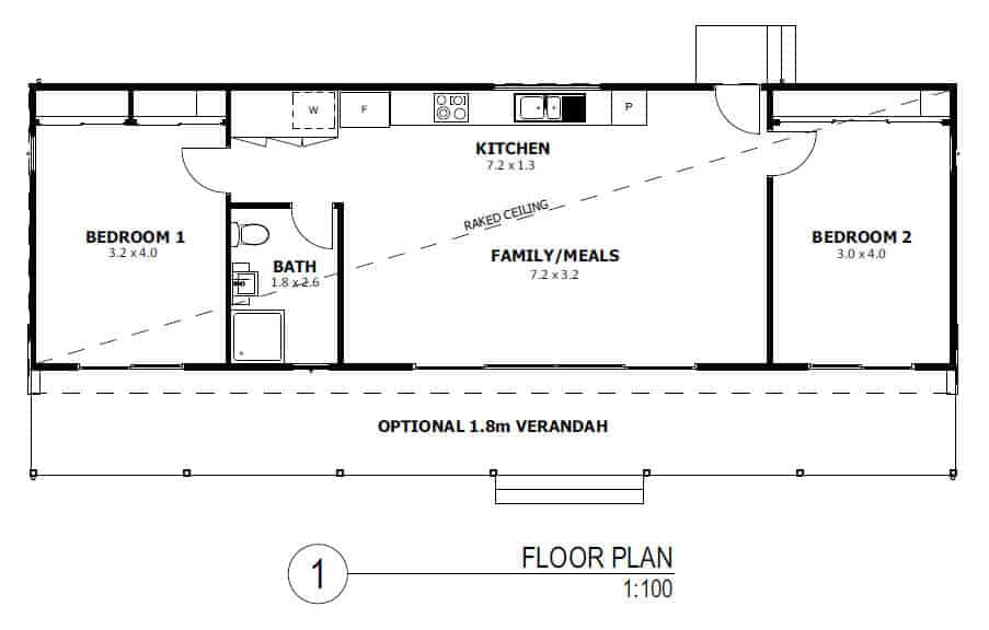
Bedrooms

2

Bathrooms

1

Area

75sqm

The Suburban is a compact, stylish home with lots of features, and it’s open to view at our Stratford display centre in Gippsland. Fully furnished with modern selections, it’s easy to see why this is one of our most popular designs.

{{item.name}}

Ready to talk about your own project?

Get expert advice from one of our consultants to help you find your ideal home

Enter search term below

  • There are no suggestions because the search field is empty.