Strathbogie

Strathbogie

Victoria

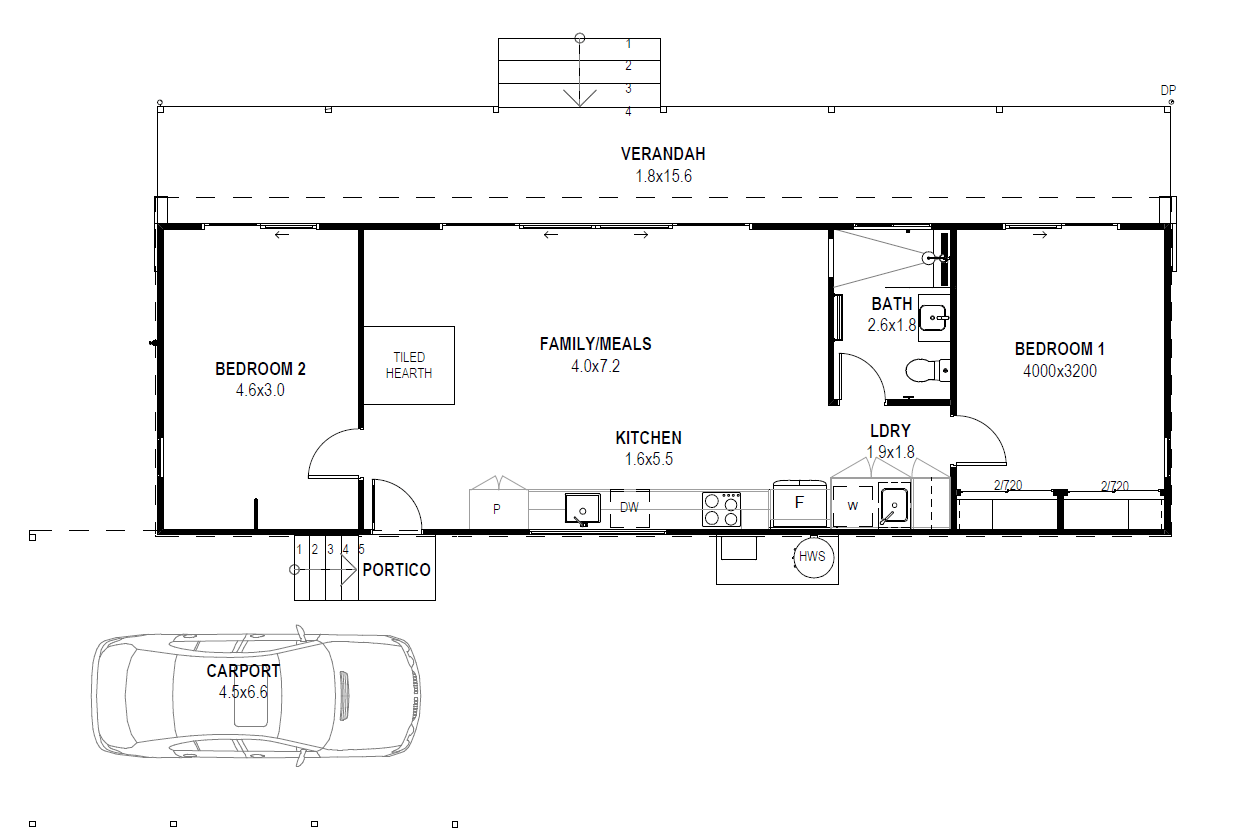
Design: Suburban (Modified)
View design
Bedrooms

2

Bathrooms

1

Area

75sqm

For this project located in Strathbogie, Victoria our clients had a clear vision and chose our two-bedroom Suburban design as their canvas. With a few customisations, we worked together to create a modern masterpiece that perfectly reflects their individual style. It's a wonderful blend of modern comfort and country charm, showcasing the beauty of smaller, well-designed spaces.

{{item.name}}

This home features a single skillion facade, complete with a front verandah that serves as the ideal spot to relax and soak in the breathtaking country views. 

___

Sustainability takes centre stage with the addition of a 61,100-litre rainwater tank in the elegant Monument colour. 

___

The European Bluestone tiled hearth and feature wall serve as the centrepiece of the living room, drawing the eye up to the tall skillion ceiling.

Strathbogie
Strathbogie
Strathbogie

Ready to talk about your own project?

Get expert advice from one of our consultants to help you find your ideal home

Enter search term below

  • There are no suggestions because the search field is empty.