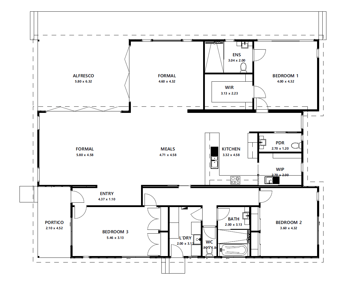
Bedrooms
3
Bathrooms
2
Area
205sqm
Located in a quiet pocket of the Mornington Peninsula, this spacious home has everything a large family needs and more. There’s ample living space to get together, including a stunning undercover alfresco that can be enjoyed year-round while taking in the peaceful surroundings.