Rye - Custom, VIC

Rye - Custom, VIC

Victoria

Design: Custom
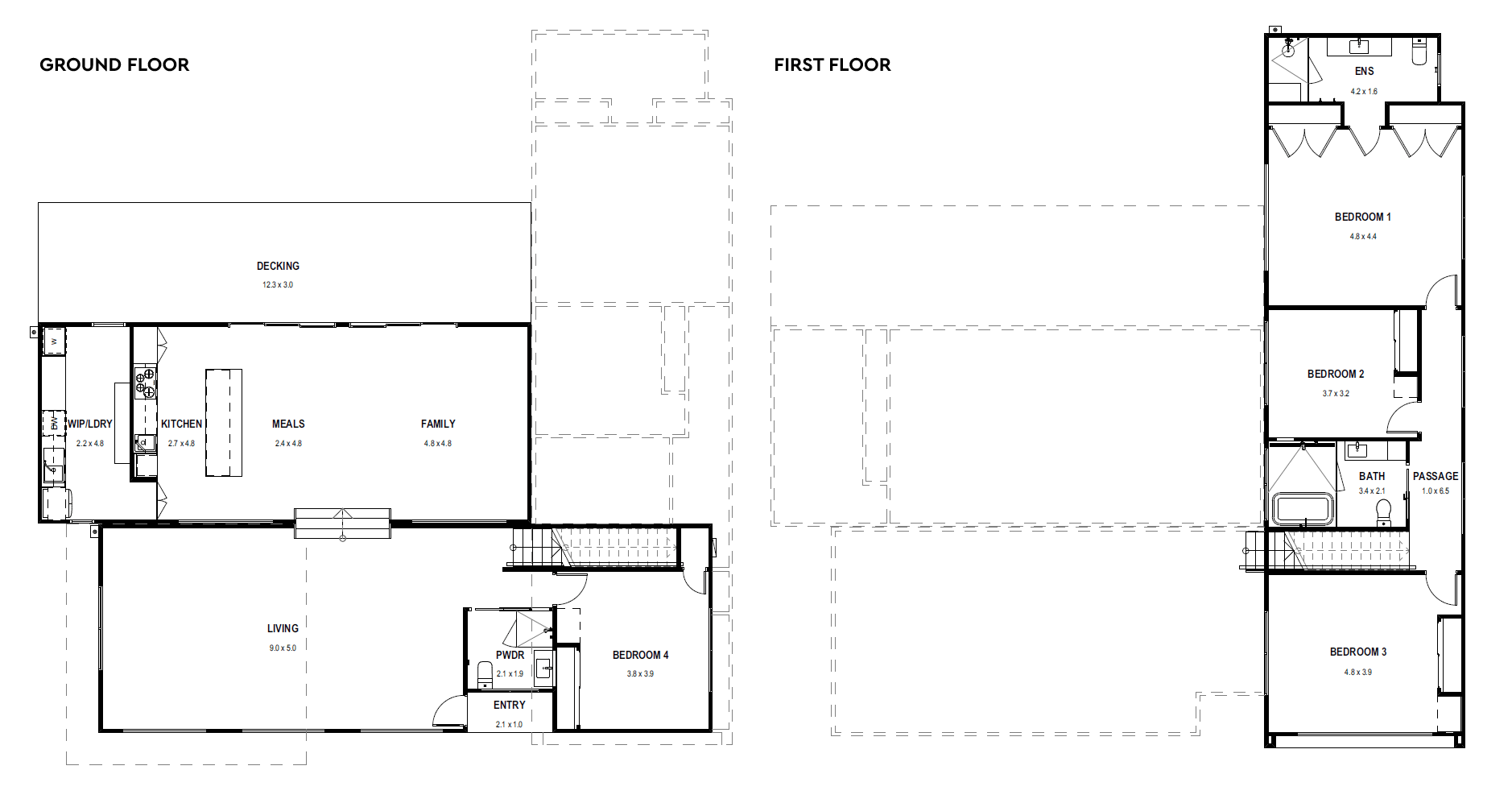
Bedrooms

4

Bathrooms

3

Area

227sqm

We’ve built many incredible homes along the Mornington Peninsula, but this two-storey project stands out as one of our most impressive creations. Despite the challenge of a sloping site, our team skilfully crafted a home that perfectly suits the block’s shape and natural features. The result is a bold, cutting-edge design with refined coastal elements.

{{item.name}}

This home consists of three modules—two on the ground floor and one on the first floor.

___

The exterior features our popular Cubehaus facade, offering tall ceilings and a sleek roofline.

___

For visual contrast we combined James Hardie Axon™ Smooth cladding in Monument with spotted gum timber. 

___

Despite the sloping site, we expertly designed a home that fits the block’s shape and features.

Rye - Custom, VIC
Rye - Custom, VIC
Rye - Custom, VIC

Ready to talk about your own project?

Get expert advice from one of our consultants to help you find your ideal home

Enter search term below

  • There are no suggestions because the search field is empty.