Patonga Beach

Patonga Beach

New South Wales

Design: Custom
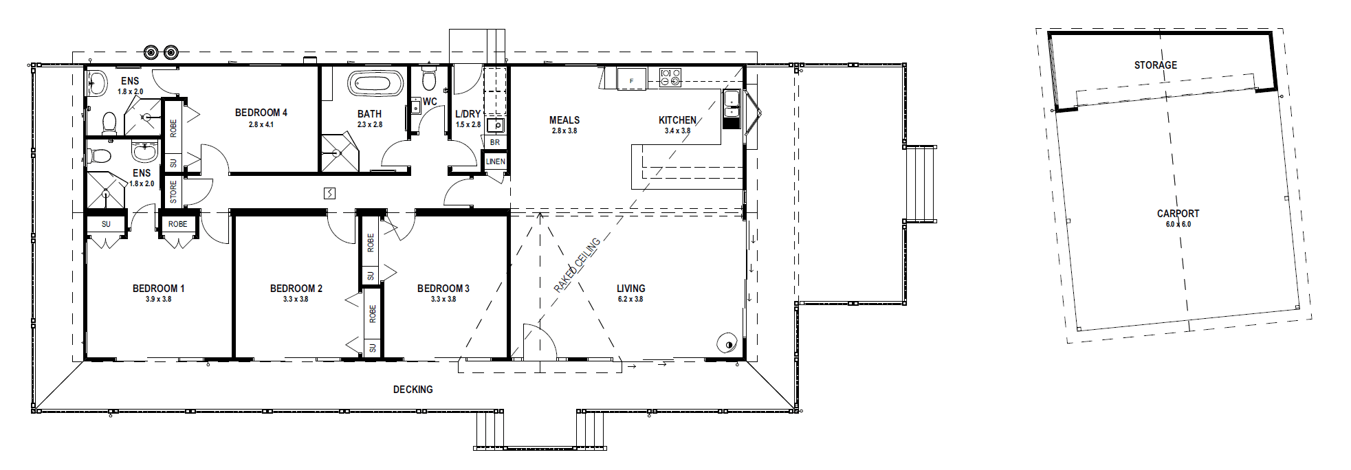
Bedrooms

4

Bathrooms

3

Area

142sqm

This unique and impressive four-bedroom custom designed home is located in a small town on the NSW Central Coast. With a striking exterior and many thoughtful inclusions and upgrades throughout, ‘Sunny Corner’ strikes the ideal balance between modern features, classic style and luxurious comfort.

{{item.name}}

With four generations of family history attached to the property, when it was time to replace the original family home, our clients had a clear picture of what they were hoping to achieve.

___

Our clients envisioned a ‘beach federation’ style, blending Australian federation with a casual coastal feel.

___

The living area exudes a sense of openness, enhanced by the raked ceiling.

___

The kitchen features a bi-fold window that opens seamlessly to the outdoor deck, perfect for hosting gatherings.

Patonga Beach
Patonga Beach
Patonga Beach

Ready to talk about your own project?

Get expert advice from one of our consultants to help you find your ideal home

Enter search term below

  • There are no suggestions because the search field is empty.