Olinda

Olinda

Victoria

Design: Custom
Bedrooms

3

Bathrooms

2

Area

168sqm

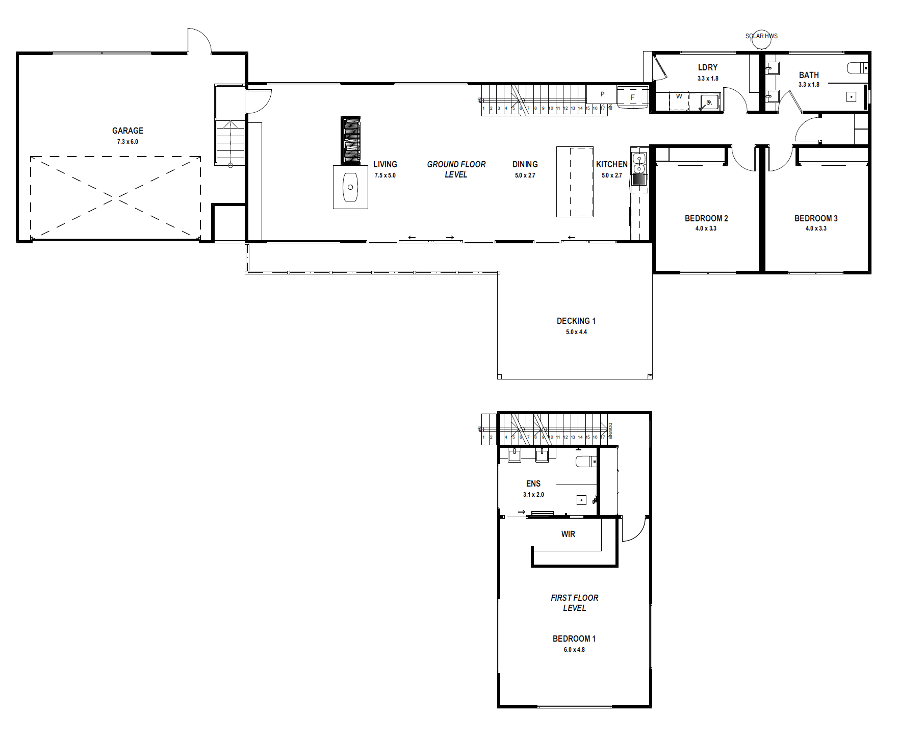
Nestled high up in the scenic Dandenong Ranges of Victoria, this custom-designed two-storey modular home finds its perfect setting in the charming town of Olinda.

Featuring three bedrooms, two bathrooms, and a wide range of luxurious upgrades, this spacious and modern home looks incredible set amongst the tall, green gum trees. With an awe-inspiring open steel frame staircase and large windows that maximise the breathtaking forest views, every meticulous detail has been artfully crafted to surpass expectations and create a stunning dream home.

{{item.name}}

With a completely customised design in mind, our clients worked with our experienced design team to create this two-storey project.

___

This home was built to meet a BAL-40 rating, delivering both enhanced bushfire protection and peace of mind for our clients.

___

A striking black steel-frame open staircase in the living area serves as a central design element, adding a bold statement.

Olinda
Olinda
Olinda

Ready to talk about your own project?

Get expert advice from one of our consultants to help you find your ideal home

Enter search term below

  • There are no suggestions because the search field is empty.