North Arm Cove

North Arm Cove

New South Wales

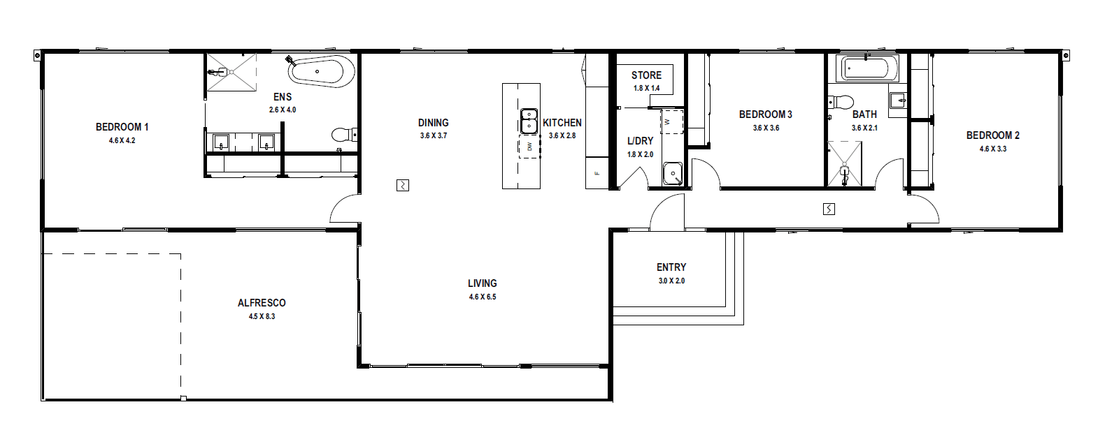
Design: Hampton 16 (Modified)
View design
Bedrooms

3

Bathrooms

2

Area

154sqm

This beautiful waterfront holiday home on the Mid-Coast of NSW enjoys an elevated position, which allows for breathtaking views. With three bedrooms and a large partly enclosed deck overlooking the water, it’s the ideal place for a peaceful getaway.

{{item.name}}

This Hampton 16 design has been efficiently modified by our design team to meet the specific needs of our clients and their site.

___

One of the key modifications our clients requested was elevating the home to maximise surrounding views.

___

We also incorporated a large outdoor decking area for entertaining and relaxation.

___

The exterior features a Cubehaus facade, defined by its tall ceilings and sleek roofline. 

North Arm Cove
North Arm Cove
North Arm Cove

Ready to talk about your own project?

Get expert advice from one of our consultants to help you find your ideal home

Enter search term below

  • There are no suggestions because the search field is empty.