Metung, VIC

Metung, VIC

Victoria

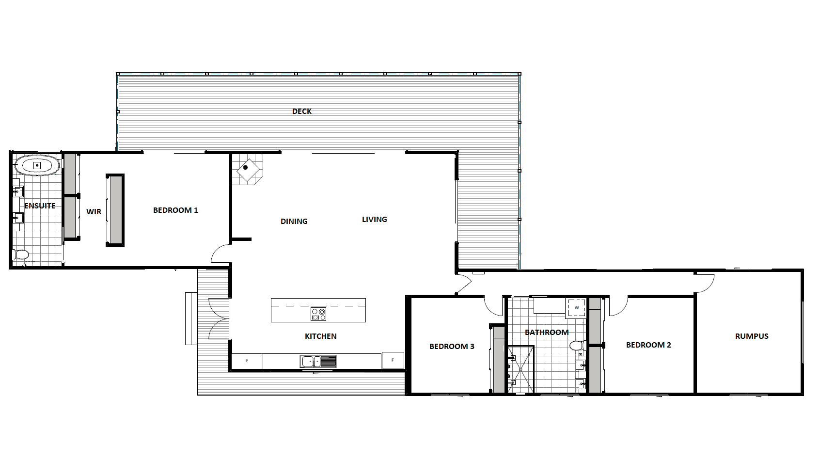
Design: Hampton 19 (Modified)
View design
Bedrooms

3

Bathrooms

2

Area

176sqm

Located on the water in the Gippsland Lakes and beach region, this striking modern design is impressive inside and out. The spectacular views can be enjoyed from both the living area and deck, and the stylish interior selections take the home to another level.

{{item.name}}
Metung, VIC
Metung, VIC

Ready to talk about your own project?

Get expert advice from one of our consultants to help you find your ideal home

Enter search term below

  • There are no suggestions because the search field is empty.