McKenzie Hill

McKenzie Hill

Victoria

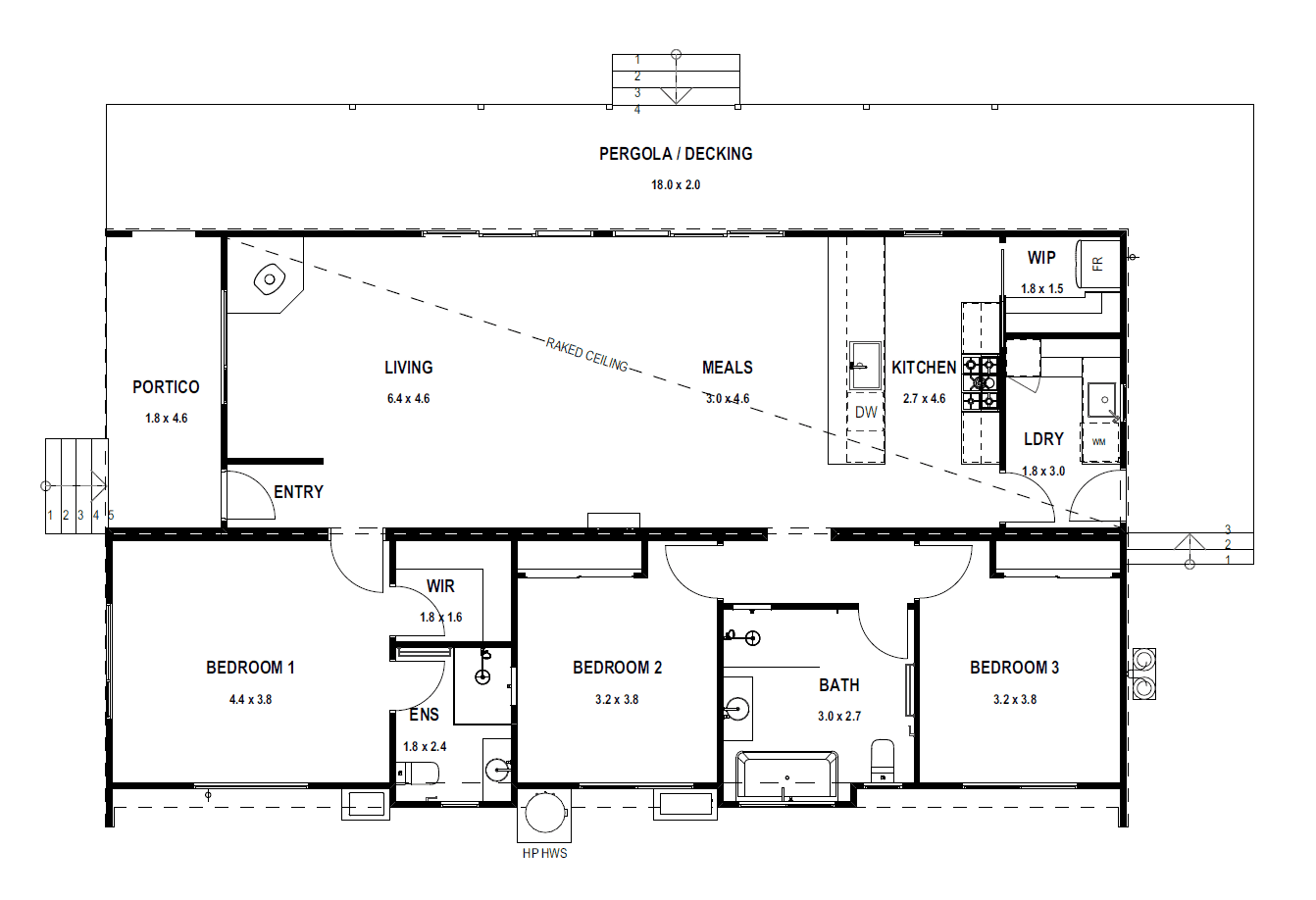
Design: Shoreham 14 (Modified)
View design
Bedrooms

3

Bathrooms

2

Area

133sqm

Set in the serene suburb of McKenzie Hill, our clients sought to create a tranquil retreat that reflected their personal style and harmonised with the natural bushland surroundings. Opting for the Shoreham 14 design, which offers open-plan living, three bedrooms, and two bathrooms, this home perfectly met their requirements for a comfortable yet stylish abode.

{{item.name}}

Our clients opted to maintain a layout similar to the standard floorplan while incorporating several upgrades to enhance and personalise the overall appearance of their home.

___

At first glance, you're immediately drawn to the striking split skillion façade, boasting contemporary lines and eye-catching angles. 

___

The Merbau decking offers a warm timber contrast to the dark exterior, while the open roof Merbau timber slat pergola adds modern flair.

McKenzie Hill
McKenzie Hill
McKenzie Hill

Ready to talk about your own project?

Get expert advice from one of our consultants to help you find your ideal home

Enter search term below

  • There are no suggestions because the search field is empty.