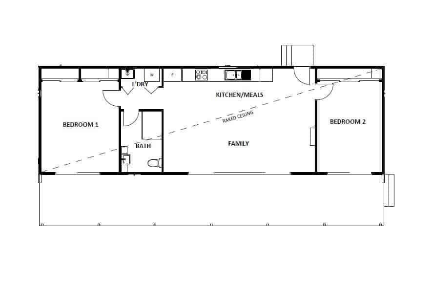
Marysville

Marysville

Victoria

Design: Suburban (Custom)
View design
Bedrooms

2

Bathrooms

1

Area

80sqm

Set in an elevated position and surrounded by breathtaking views, this beautiful accommodation venue is the perfect place to relax and unwind. With ample windows and sliding door access to the front verandah through the living area and both bedrooms, this compact rural retreat is a popular choice for couples and small groups looking for a weekend escape.

“The professional workmanship of the tradesmen and quality of fittings and fixtures resulted in a home that I absolutely love. The house is light, modern, open plan and thermally efficient making for a very comfortable home.”

- Deborah
{{item.name}}

Ready to talk about your own project?

Get expert advice from one of our consultants to help you find your ideal home

Enter search term below

  • There are no suggestions because the search field is empty.