Cranbourne South

Cranbourne South

Victoria

Design: Newhaven with Garage 19 (Modified)
View design
Bedrooms

3

Bathrooms

2

Area

181sqm

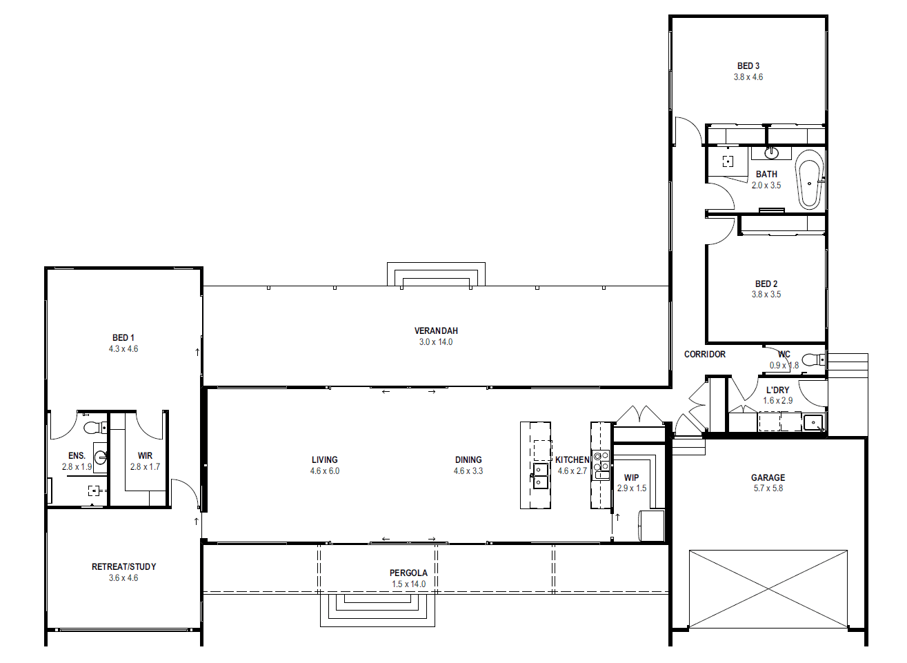
In Cranbourne South, Victoria, our clients had a clear vision for their dream retirement retreat. They selected our three-bedroom Newhaven 19 design with a garage, and together, we modified it into a stylish home that perfectly reflects their unique style. It's a modern masterpiece that effortlessly combines functionality with a cosy, family-friendly atmosphere.

The Newhaven house, or homestead that we have, was what really brought us to Anchor in a big way...we really enjoyed working with Anchor.

- Sue & David
{{item.name}}

The Newhaven 19 floorplan has been expertly reconfigured, swapping the two wings of the design as per our clients request. 

___

The modern gable facade is accentuated by thoughtfully positioned picture windows, adding a striking visual element.

___

The living space is characterised by beautiful raked ceilings and large windows that flood the area with natural light.

Cranbourne South
Cranbourne South
Cranbourne South

Ready to talk about your own project?

Get expert advice from one of our consultants to help you find your ideal home

Enter search term below

  • There are no suggestions because the search field is empty.