Clifton Springs

Clifton Springs

Victoria

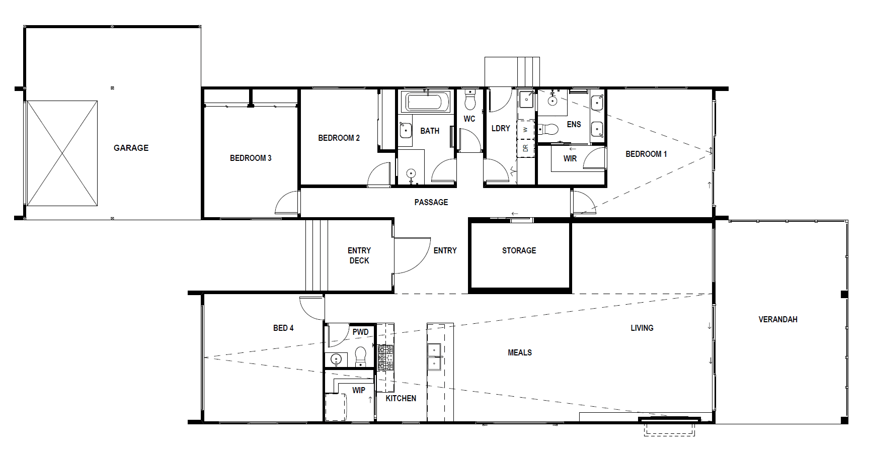
Design: Portsea 16 (Modified)
View design
Bedrooms

4

Bathrooms

2

Area

182sqm

Modern and stylish, this stunning family home on the Bellarine Peninsula in Victoria is the perfect place for enjoying a coastal lifestyle. This 4-bedroom modified Portsea 16 design features several luxury interior upgrades, with the modern gable façade adding sleek lines and striking visual appeal. Perfectly positioned on the coastline with incredible views, this beautiful seaside home is sure to turn heads!

{{item.name}}

Our clients sought specific modifications to the Portsea 16 design to better suit their vision.

___

A key enhancement was the addition of a garage at the front of the home. 

___

Popular upgrades, such as a spacious deck and a gabled pergola, were integrated to elevate the outdoor living space.

___

With it's modern gable facade, this home features tall raked ceilings that make a striking impression.

Clifton Springs
Clifton Springs
Clifton Springs

Ready to talk about your own project?

Get expert advice from one of our consultants to help you find your ideal home

Enter search term below

  • There are no suggestions because the search field is empty.