Bowral

Bowral

New South Wales

Design: Tambo (Custom)
View design
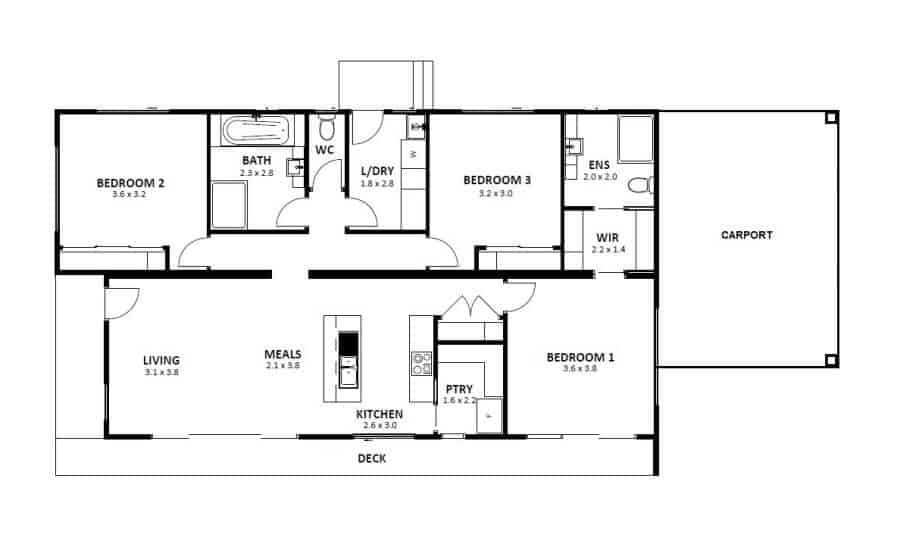
Bedrooms

3

Bathrooms

2

Area

113sqm

Our clients worked with our designers to create the ideal home for their block located in the Southern Highlands of NSW. The modern cubehause façade is a perfect match for the stunning bi-fold windows opening out to the full-length front deck, giving the home plenty of street appeal.

{{item.name}}

Ready to talk about your own project?

Get expert advice from one of our consultants to help you find your ideal home

Enter search term below

  • There are no suggestions because the search field is empty.