Boronia

Boronia

Victoria

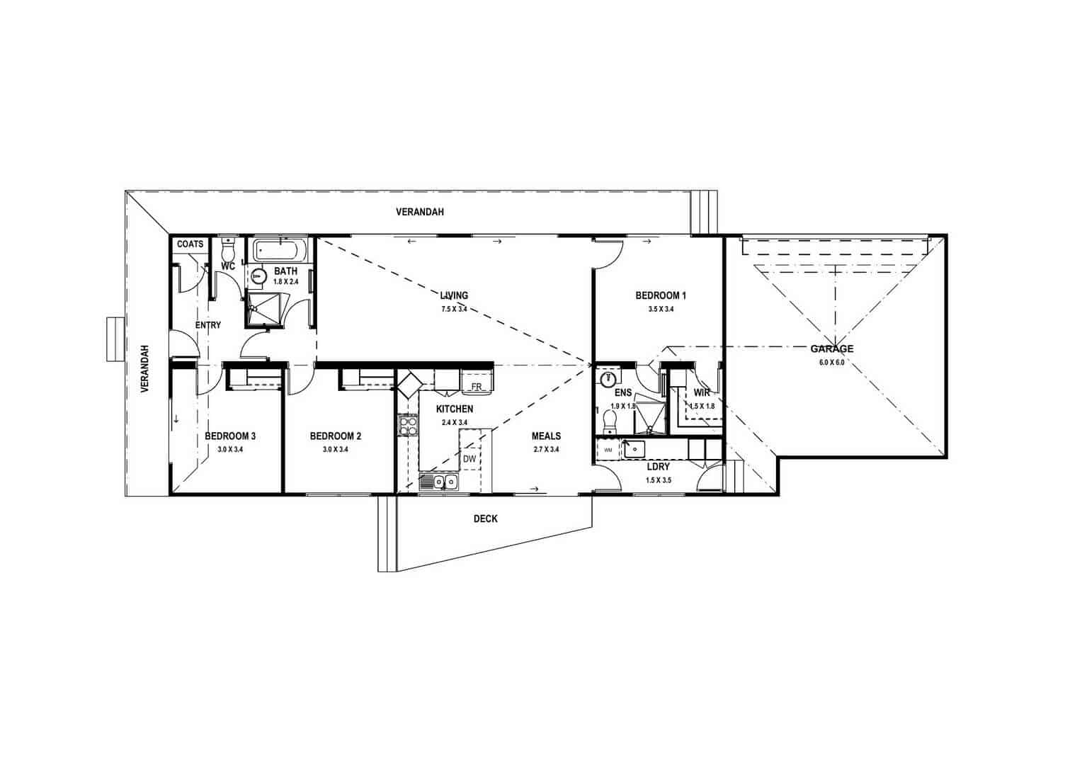
Design: Homestead 2 (Modified)
View design
Bedrooms

3

Bathrooms

2

Area

110sqm

When our client wanted to build a modern, eco-friendly investment property in the eastern suburbs of Melbourne, a custom-designed modular home ticked all the boxes. Our design team worked from a detailed client brief to create this stylish three-bedroom home.

{{item.name}}

Ready to talk about your own project?

Get expert advice from one of our consultants to help you find your ideal home

Enter search term below

  • There are no suggestions because the search field is empty.