Avoca 12 Display Home, Stratford

Avoca 12 Display Home, Stratford

Victoria

Design: Avoca 12
View design
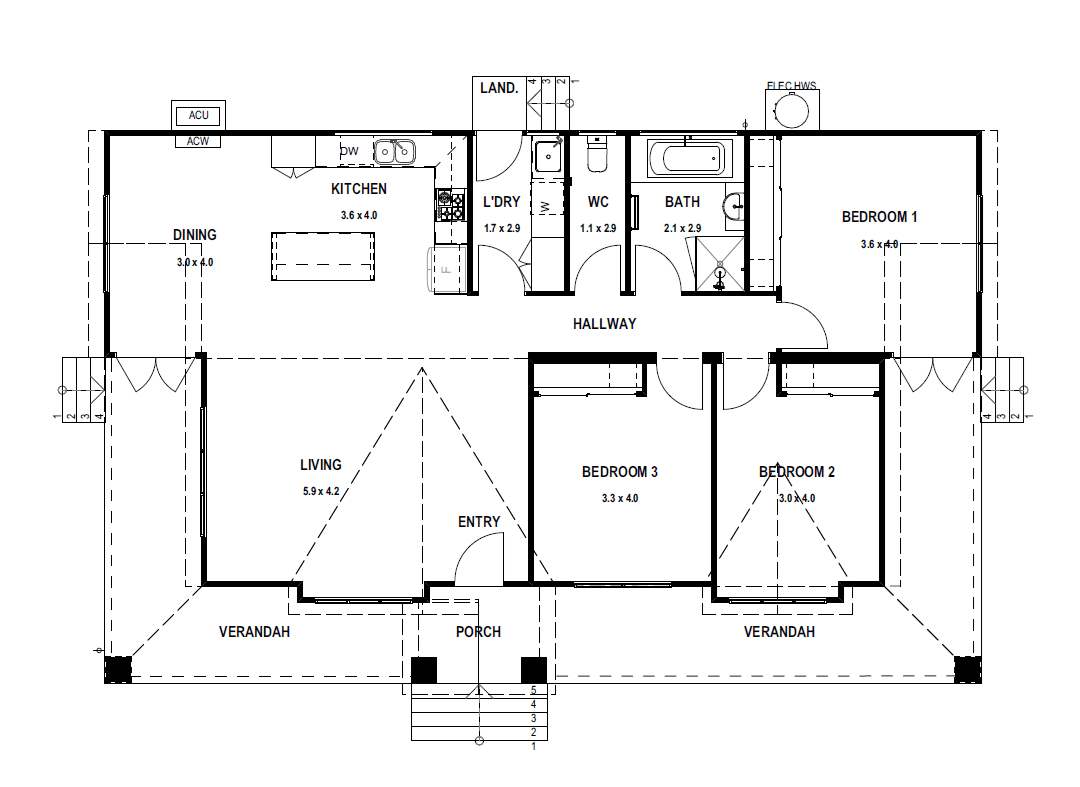
Bedrooms

3

Bathrooms

1

Area

121sqm

Located at our Stratford location, the Avoca 12 display home is a cosy three-bedroom dwelling that perfectly caters to small families, couples, or retirees. Its charming gable front and wraparound porch evoke a timeless aura. The living area features a high ceiling that creates a sense of spaciousness and invites abundant natural light to flood the space. Each of the three bedrooms is equipped with a built-in wardrobe, ensuring ample storage for belongings.

{{item.name}}
Avoca 12 Display Home, Stratford
Avoca 12 Display Home, Stratford

Ready to talk about your own project?

Get expert advice from one of our consultants to help you find your ideal home

Enter search term below

  • There are no suggestions because the search field is empty.